Park Ridge Shopping Center

Norristown PA

Park Ridge (West Ridge Pike and Park Avenue)

2769 West Ridge Pike

Norristown, PA 19403

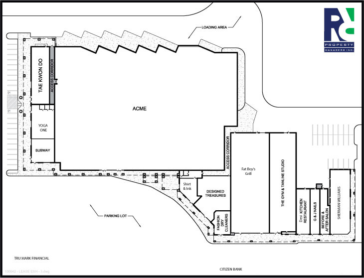
Park Ridge Shopping Center is a grocery anchored shopping center located at the intersection of West Main Street (Ridge Pike) and Park Avenue in Norristown, Pennsylvania. The center was developed and built by John B. Rich in 1959.  The first shopping center of its kind in Montgomery County, it boasted “covered sidewalks” for customers to walk from store to store to protect them from the mother nature.  Since that time the shopping center’s footprint has expanded to keep up with the ever changing times. The center is now anchored by a 64,000sf+ Acme Markets.  The Tenant roster includes:

 

• Eagleville Tae Kwon Do

• Yoga One

• Subway

• Acme

• Shirt & Ink

• Designed Treasures

• Fashion Dry Cleaners

• Fat Boy’s Grille (Opening Spring 2015)

• The Gym

• Desi Kitchen

• Before & After Salon

• G&J Nails

• Sherwin Williams Paints

• Citizens Bank

• TruMark Financial Credit Union

 

Municipality: Lower Providence Township

County: Montgomery County

 

Interesting Facts: The area is sometimes referred to as either Trooper, Eagleville or Norristown. It is situated on Route 363 also known as West Main Street or Ridge Pike. Arthur Treachers Fish & Chips once sat where TruMark Financial Credit Union is located.

 

10 Gilberton Road Gilberton, PA 17934